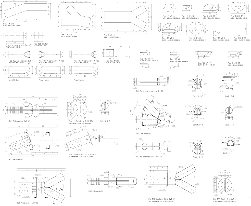
Neubau einer Fußgänger- und Radbrücke über die Donau
Ca. 450m lang, auf fünf Pfeilern und den Widerlagern ruhend
Bauort: Deggendorf
Planungszeit: 2011 (WP)
Fertigstellung: 2013
Architektur: raumzeit Gesellschaft von Architekten mbH | Berlin
Tragwerksplanung: Projektingenieur bei ZRS Ingenieure | Berlin
Leistungsphase 5: Werkplanung der Brückenpfeiler (proSteel)










